Additional information
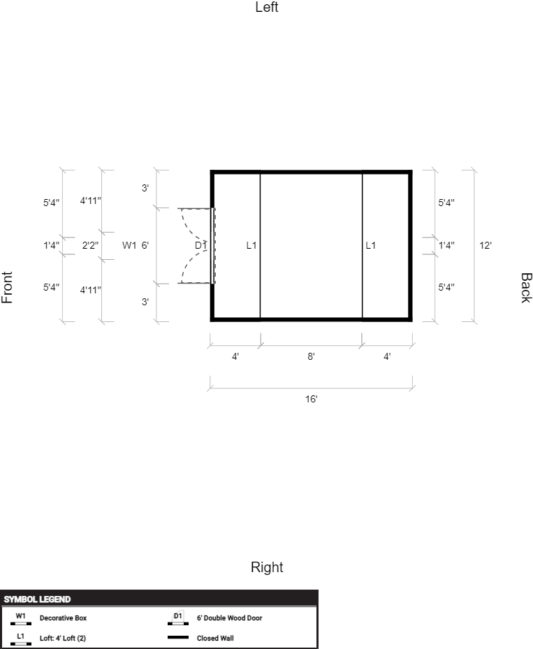
| Style | Lofted Barn |
|---|---|
| Size | 12×16 |
| Wall Height | 7'9.5" Sidewall Height |
| Roof Pitch | Standard 4/12 |
| Siding Color | |
| Siding Material | Painted (LP Smartsiding) |
| Trim Color | White |
| Roof Color | |
| Roof Material | Metal Roof |
| Windows | Decorative Box |
| Doors | 6' Double Wood Door |
| Vents | Standard Vent |






Reviews
There are no reviews yet.